Bonjour,
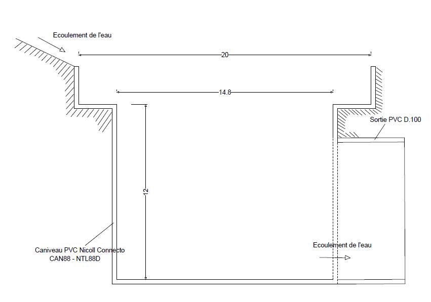
je viens vers vous un problème d'étanchéité de caniveau PVC. Je vous joins un schéma () afin que vous compreniez mieux le cas.
L'eau provient d'un débordement de piscine sur la gauche du schéma. Elle s'écoule dans le caniveau puis s'évacue par 10 sorties latérales en PVC D.100.
Les "fuites" sont apparues à la longue aux jonctions des corps de caniveaux et aux sorties latérales.
Je crois savoir que la résine n'adhère pas sur le PVC et comprend qu'il faudrait utiliser le caniveau comme "coffrage perdu". La "stratification" se ferait donc sur toute la longueur (13ml) du caniveau.
N'ayant jamais employé ce type de matériaux, je me pose quelques questions.
-La résine est elle facile à travailler? Avec un pinceau? Faut il des outils spéciaux?
-Si la résine n'accroche pas sur le PVC, l'eau ne va t-elle pas s'infiltrer sous la résine?
Comment traiteriez vous ce problème?
Merci de votre attention.
Etanchéité caniveau PVC
- Hippomouleur
- Messages : 2982
- Enregistré le : lun. 19 oct. 2009 11:36
Re: Etanchéité caniveau PVC
Bonjour,
effectivement les résines thermodurcissable adhèrent mal sur le PVC, mais si elles ne subissent pas d'effort de traction, elles ne vont pas se décoller rapidement !
Mais si je comprends bien ce que vous nous dites, les fuites se situent au niveau des raccordement des tuyaux de 100 ?
(Pas de fissures le caniveau nicoll que ce soit au fond ou sur les angles ?)
Pour essayer de traiter ces jonctions tuyaux/caniveau, inutile de vouloir traiter avec de la résine et de la fibre de verre, vous n'y arriverez pas !
(si tant est que ce soit possible en fait, il faudrait voir de visu)Je ferais plutô un essai de renforcement de la jonction au masticolle époxy sub aquatique.
http://www.boutique.resines-et-moulages ... 25-kg.html" onclick="window.open(this.href);return false;
En fait, après séchage, ponçage au gros grains (40) et dépoussiérage à l'acétone des parties à traiter, je viendrais disposer un bon bourrelet le mastic époxy partout où cela est possible en épaisseur de 4 à 5 mm.
Selon comment cela se présente, on peut aussi imaginer de venir intégrer dans ce bourrelet une couche de galon roving en 50 mm afin de renforcer un petit peu mécaniquement.
Le top étant de venir stratifier ce galon sur le mastic encore frais (voir la vidéo de réparation de coffre)
http://forum-resines.net/viewtopic.php?f=36&t=308" onclick="window.open(this.href);return false;
mais ce n'est peut être pas possible, je ne sais pas ?
effectivement les résines thermodurcissable adhèrent mal sur le PVC, mais si elles ne subissent pas d'effort de traction, elles ne vont pas se décoller rapidement !
Mais si je comprends bien ce que vous nous dites, les fuites se situent au niveau des raccordement des tuyaux de 100 ?
(Pas de fissures le caniveau nicoll que ce soit au fond ou sur les angles ?)
Pour essayer de traiter ces jonctions tuyaux/caniveau, inutile de vouloir traiter avec de la résine et de la fibre de verre, vous n'y arriverez pas !
(si tant est que ce soit possible en fait, il faudrait voir de visu)Je ferais plutô un essai de renforcement de la jonction au masticolle époxy sub aquatique.
http://www.boutique.resines-et-moulages ... 25-kg.html" onclick="window.open(this.href);return false;
En fait, après séchage, ponçage au gros grains (40) et dépoussiérage à l'acétone des parties à traiter, je viendrais disposer un bon bourrelet le mastic époxy partout où cela est possible en épaisseur de 4 à 5 mm.
Selon comment cela se présente, on peut aussi imaginer de venir intégrer dans ce bourrelet une couche de galon roving en 50 mm afin de renforcer un petit peu mécaniquement.
Le top étant de venir stratifier ce galon sur le mastic encore frais (voir la vidéo de réparation de coffre)
http://forum-resines.net/viewtopic.php?f=36&t=308" onclick="window.open(this.href);return false;
mais ce n'est peut être pas possible, je ne sais pas ?
Re: Etanchéité caniveau PVC
Bonjour,
merci de vous intéresser à mon cas. Les fuites se font à la jonction de chaque caniveau. Ce sont des caniveaux de 50cm emboités les uns dans les autres. L'étanchéité a été faite à l'origine avec du silicone (il semble), mais à la longue il s'est décollé. Il y a d'autres fuites au niveau des sorties car celles ci sont des pièces rapportées sur le caniveau et sont parfois fissurées. Par la suite, il n'y a pas de fuite sur les collage des tubes PVC. C'est bien uniquement le caniveau que je souhaiterais traiter. J'ai essayé des produits Sika qui n'ont pas tenu dans le temps. Mon idée à présent est de faire un caniveau dans le caniveau avec des matériaux composites et non pas de tenter de colmater les fuites elles mêmes.
N'hésitez pas à revenir vers moi si mes explications ne sont pas cohérentes.
merci de vous intéresser à mon cas. Les fuites se font à la jonction de chaque caniveau. Ce sont des caniveaux de 50cm emboités les uns dans les autres. L'étanchéité a été faite à l'origine avec du silicone (il semble), mais à la longue il s'est décollé. Il y a d'autres fuites au niveau des sorties car celles ci sont des pièces rapportées sur le caniveau et sont parfois fissurées. Par la suite, il n'y a pas de fuite sur les collage des tubes PVC. C'est bien uniquement le caniveau que je souhaiterais traiter. J'ai essayé des produits Sika qui n'ont pas tenu dans le temps. Mon idée à présent est de faire un caniveau dans le caniveau avec des matériaux composites et non pas de tenter de colmater les fuites elles mêmes.
N'hésitez pas à revenir vers moi si mes explications ne sont pas cohérentes.
Re: Etanchéité caniveau PVC
Oui mais stratifier dans un caniveau ou une rigole de piscine, c'est quasi impossible ! A moins que le vôtre soit grand large et très ouvert, ce qui m'étonnerais un peu puisque vous expliquez que c'est du Nicoll.Hippomouleur a écrit :
Pour essayer de traiter ces jonctions tuyaux/caniveau, inutile de vouloir traiter avec de la résine et de la fibre de verre, vous n'y arriverez pas !
(si tant est que ce soit possible en fait, il faudrait voir de visu) Je ferais plutôt un essai de renforcement de la jonction au masticolle époxy sub aquatique.
http://www.boutique.resines-et-moulages ... 25-kg.html" onclick="window.open(this.href);return false;
En fait, après séchage, ponçage au gros grains (40) et dépoussiérage à l'acétone des parties à traiter, je viendrais disposer un bon bourrelet le mastic époxy partout où cela est possible en épaisseur de 4 à 5 mm.
Selon comment cela se présente, on peut aussi imaginer de venir intégrer dans ce bourrelet une couche de galon roving en 50 mm afin de renforcer un petit peu mécaniquement.
Le top étant de venir stratifier ce galon sur le mastic encore frais (voir la vidéo de réparation de coffre)
http://forum-resines.net/viewtopic.php?f=36&t=308" onclick="window.open(this.href);return false;
mais ce n'est peut être pas possible, je ne sais pas ?
Les produits d'étanchéité qu'a préconisé l'Hippomouleur n'ont rien à voir avec un mastic quelconque quelle que soit la marque commerciale. C'est une résine époxy performante formulée pour les travaux sous-marins.
La solution la meilleure étant la réponse de mon collègue que j'ai colorée en rouge.
Si vous voulez vraiment recouvrir totalement votre caniveau, vous faites la réparation préconisée puis vous stratifiez epoxy-roving en débullant très soigneusement donc il faut avoir bien l'espace de passer l'outil.

Isatis, goupil résineur...


- Hippomouleur
- Messages : 2982
- Enregistré le : lun. 19 oct. 2009 11:36
Re: Etanchéité caniveau PVC
Je n'avais pas du tout compris cela !pebeo a écrit :Bonjour,
merci de vous intéresser à mon cas. Les fuites se font à la jonction de chaque caniveau.Ce sont des caniveaux de 50cm emboités les uns dans les autres. L'étanchéité a été faite à l'origine avec du silicone (il semble), mais à la longue il s'est décollé.
Pour ce point précis, vous pouvez reprendre à la résine epoxy
http://www.boutique.resines-et-moulages ... ee-uv.html" onclick="window.open(this.href);return false;
en stratifiant du galon de roving 300 http://www.boutique.resines-et-moulages ... 50-mm.html" onclick="window.open(this.href);return false; par exemple.
Même préparation qu'indiqué plus haut, mais en prenant soin d'insister sur la colle si c'était du silicone.
Autre possibilité, recréer un caniveau intérieur complet à base de mat de verre et de résine polyester isophtalique plus top coat polyester.
La difficulté va provenir à mon sens de l'accessibilité comme le faisait remarque Isatis (car le débullage est primordial) et que si j'en crois votre croquis, les sorties en 100 ne laissent que peu de place en dessous pour recréer un caniveau.
Car pour traiter le raccordement caniveau/sorties, s'il y a des fuites, je ne voit guère d'autres solution que celle expliquée plus haut.
Les deux choses pouvant être complémentaires: stratification verre polyester dans le caniveau puis traitement des raccordement de sorties.
Re: Etanchéité caniveau PVC
Bonjour,
merci pour vos réponses. Je vais réfléchir à tout cela et reviens vers vous pour vous dire ce qu'il en est.
merci pour vos réponses. Je vais réfléchir à tout cela et reviens vers vous pour vous dire ce qu'il en est.